| アメリカ 西部 |
神谷武夫
|
ARIZONA BILTMORE HOTEL, 1927, Phoenix アリゾナ州の州都、フィーニクス(フェニックス)に建てられたホテルで、タリアセン・ウェストを訪ねるためには、ここに宿泊することになる。しかし、ライトがこのホテルの設計にどこまで係わったのかは明らかでない。もと オウク・パークでのドラフトマンだったアルバート・C・マッカーサー(Albert Chase McArthur)が独立して請けた仕事で、ライトのカリフォルニアでのテキスタイル・ブロックの仕事を受け継ぐために、1928年にライトに「設計アドヴァイザー」になってもらったのだと言う。 ライトはその年、再婚相手のオルギヴァンナと二人の娘(スヴェトラーナとイオヴァンナ)を連れて、初めてアリゾナを訪れ、冬から夏にかけて半年を 砂漠の地に滞在した。 ホテルの骨子は 帝国ホテルを経験したライトの指導のもとに設計されたが、当然 すべてを意のままにはできなかったので、ライトはこのホテルのデザインに あまり満足しなかったらしい。それでも 安い材料を用いて、長大なロビーやレストラン、バーなど、高級ホテルに近い質を実現したとは言えるし、カリフォルニアでのテキスタイル・ブロックの構法、仕上げをここに適用することもできた。そして、当時 ウィスコンシンで四面楚歌だったライトとオルギヴァンナ夫人は、この仕事でやっと一息つけたのだった。これを機会にライトは、北の寒冷なウィスコンシンとは まるで違った 砂漠の風土に 耽溺していくのである。
![]() アリゾナ・ビルトモア・ホテルの中庭とレストラン
![]()
「砂漠のサン・マルコス」リゾート施設計画 1928年 JORGINE BOOMER RESIDENCE, 1953、Phoenix フィーニクス(フェニックス)市の郊外の、コンパクトな「ユーソニアン・ハウス(後述)」。私の訪問時、この家を 1963年に買い受けた ルシル・キンター未亡人が存命中で、この家を一人で大切に住んでいた。1階に居間、2階にも 寝室を兼ねた居間がある。庭や周囲の手入れをする余裕はなかったらしく、樹木が生い茂って、建設当時の砂漠の外観が見られなくなってしまった。2階の居間にいると、この 斜め屋根の快適そうな小住宅は、吉村順三の名作、軽井沢の『森の中の家』を思い起こさせた。
![]() ブーマー邸 平面図
ユーソニア住宅 (Usonian House) について、簡単な説明をしておこう。ライトの住宅作品は、前期の「プレーリー・ハウス」と、後期の「ユーソニアン・ハウス」に 大きく二分される。「ユーソニア」というのは、UNITED STATES OF NORTH AMERICA の頭文字を並べて(語呂をよくするために I を加えて)、小説家のサミュエル・バトラーが造語したもので、ライトはその言葉を利用して、自分が設計した それまでの豪邸、邸宅とは違った、平均的なアメリカ市民とその家庭のための、合理的でコンパクトな経済的住宅を作ることを志し、それを「ユーソニア住宅」と呼んだのである。
![]()
最初のユーソニア住宅 、ジェイコブズ邸の透視図
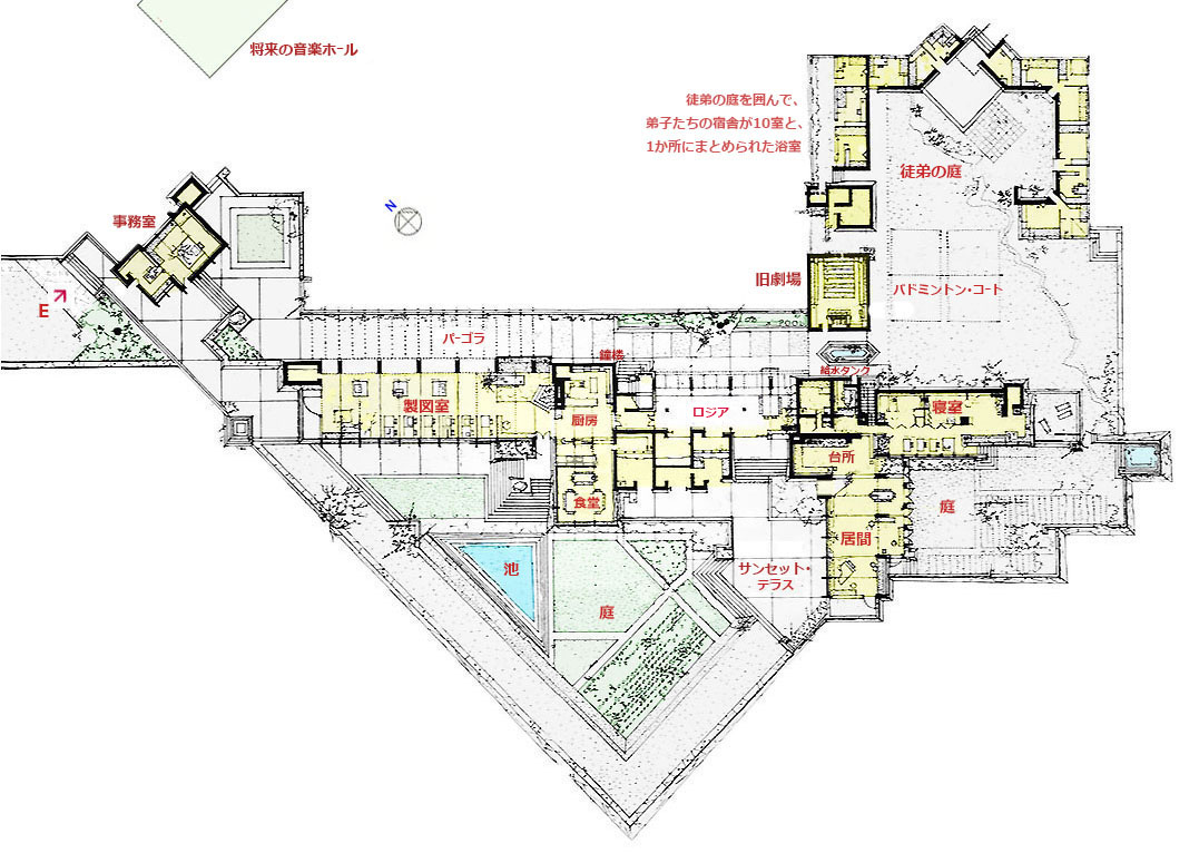
TALIESIN WEST, 1938-56, near Phoenix, Arizona ライトは 1936年にウィスコンシンの寒さで重い肺炎に罹ったあと、避寒地として、ここにタリアセン・ウェストを建設した。アリゾナのフィーニクス(フェニックス)市の北東 25キロメートルの砂漠の中に(行政区画としてはアリゾナ州、スコッツデイル市になるが)、ライトは 徒弟(フェロー)を引き連れて、北のウィスコンシンのタリアセンから、半年ごとにキャラバンを組んで大移動し、アリゾナで 10月から5月まで過ごし、仕事をするようになった。もとはと言えば、前述のチャンドラー博士の「砂漠のサン・マルコス」リゾート施設を設計するために、ライトが設計し 弟子たちが自力で建設した、自身とスタッフの仮設の仕事場 兼住居の「オカティラ砂漠キャンプ」であった。(オカティラとは「ろうそくの炎」の意だといい、ひと夏ウィスコンシンのタリアセンに戻っている間に、キャンプは消滅してしまった。) 「タリアセン」というのは、 ライトがオウク・パークの自宅とスタジオを引き払い、1911年に故郷のウィスコンシンに母が買った土地に メイマと暮らすための自宅を建て、仕事場も作って、そこに名付けた名前である。しかし 平和な生活は長くは続かず、3年後に一人の使用人が精神錯乱を起こして メイマとその子供、ライトの弟子など7人を殺害し、建物に放火して全焼させてしまった。
![]()
ウィスコンシンの タリアセン(ライトの自邸) スキャンダルに次ぐスキャンダルにもめげず、ライトはこれを再建して「 タリアセン II 」として、3番めの妻ミリアムと暮らすが、これも破綻。 タリアセンは 1925年に再び火災にあって、主に住居部分が消失。またまた 再建して、4番目の妻 オルギヴァンナと暮らす「 タリアセン III 」とする。 1932年に ウィスコンシンの自宅に、オルギヴァンナの才覚で「タリアセン・フェローシップ」という一種の 建築学校を創立し、ライト一家と徒弟(フェロー)たちで 自給自足の共同生活をすることになる。借金だらけのライトは破産状態だったので、所員(ドラフトマン)を雇って給料を払うのではなく、ライト流の建築を学びたい若者を集めて 授業料を取り、図面を描かせるばかりでなく、実地教育として、施設の建設作業も 農作業もさせる、という 虫の良いシステムである。その修行場となるウィスコンシンの自宅兼仕事場は、後に「タリアセン・イースト」と呼ばれることになる。 カナダに近いウィスコンシンの冬は非常に寒くて ライトの老体には適さず、肺炎を起こさせるほどだったので、医者から転地療養を勧められた。そこで ライトが 70歳の 1937年に、ライトが惚れ込んだ 暖かいアリゾナの砂漠に 243ヘクタールの荒れ地を購入し、「冬の家」としての「タリアセン・ウェスト」を フェローたちの肉体労働によって建設し、冬は「学校」も「仕事場」も、こちらに移すことにした。 従って 気候的に言えば、タリアセン・イーストと ウェストと呼ぶより、タリアセン・ノースと サウスと呼ぶほうがふさわしいような気がする。
![]() アリゾナの タリアセン・ウェストの景観
ライトの『自伝』によれば、ライトの親類の者は 皆 自分の土地にウェールズ名を持っていたので、自分の土地の名は タリアセン にしたのだという。
私がタリアセン・ウェストを訪れた 1987年には、ライトはもちろん、オルギヴァンナ夫人も2年前に没していたが、ライトの意思を引き継いだライト財団の手によって運営され、ここには ライトの作品を熱愛する若者たちが 世界中から徒弟奉公(フェローシップ)に来ていた。 日本からは名城大学を出たNさんが 遠藤楽氏の紹介で来ていて、授業料は2年間で 4,000ドルだったという。
Drafting Room, Taliesin West
製図室で、徒弟の図面をチェックするライト Right's own Residence, Taliesin West
ライトは冬は ここに住んで、設計し、フェローの指導に当たったが、実際的なことは ほとんど すべて オルギヴァンナ夫人が こなした。日曜日の夜は いつもフェローたちを呼んで 広い居間(ガーデン・ルーム)で夜会を開き、ディナーのあと 音楽会を催した。そこでの講話を含め、すべてが徒弟教育だった。タリアセン・ウェストの 建設当初のフェローシップのメンバーは 30人ほどだったという。 ![]() ライトとオルギヴァンナの住居、居間(ガーデン・ルーム) ![]()
居間(ガーデン・ルーム)断面図 (From a website) Various Facilities in Taliesin West フェローたちは、タリアセン・イーストを好む者と、タリアセン・ウェストを好む者に 分かれたという。後者には、ウェストのほうが明るく活気的で、より未来があると感じられたのだろう。エドガー・ターフェルの言葉を借りれば、ここには何かお祭り気分のようなものがあった。何もない所からの出発は 苦労の連続だったが、アメリカ的開拓精神に満ちていた。砂漠の中に伸び拡がるマスタープランはもちろん、総ての施設は、陽光の下に製図版を置いての ライトの設計であり、フェローシップの施工である。
Music Pavilion, 1957, Taliesin West
ライトは 別れた父親(牧師であり、音楽家でもあった)から 音楽への愛を受け継ぎ、子供の時から 父に教えられてピアノを弾いた。特にバッハとベートーヴェンを好んだという。家族にも楽器を習わせて 家庭音楽会を開き、タリアセンのフェローたちにも楽器を勧め、タリアセン・イーストの居間にも、タリアセン・ウェストの居間にも、そして製図室 その他の仕事場にも グランド・ピアノを置き、ウェストには 音楽ホール(ミュージック・パヴィリオン)まで建てた。 徒弟(フェロー)の エドガー・ターフェルは ピアノが弾けたので、仕事中に製図室で、よくライトに命じられて(BGM として)ピアノを弾かされたという。
![]() 音楽ホール 舞台 Reconstructed R. Jester House, 1938, Taliesin West かつてライトが1938年に計画していながら実現しなかった住居(ジェスター邸)を、B・P・ファイファーが 1972年にタリアセン・ウェストに復原して建て、独身の所員たちが住んでいる家。どの部屋も円形で、部屋から部屋へは、屋根付きの中庭を通って 出入りするようになっている。外観を見て 鉄筋コンクリート造かと思ったが、実は木造であると知って驚いた。
( From Google Maps )
|
