FROM-FIRST BUILDING in TOKYO

フロムーストビル

設計・監理=山下和正建築研究所
( 担当=神谷武夫 )



 

   

   

BACK

山下和正建築研究所に勤務していた20代の後半に、基本設計から現場常駐監理まで、3年にわたって すべてを担当した(この竣工と残務整理の終了後、初めてインド建築の研究と撮影の旅に出た)。 これは 1976年度の日本建築学会・作品賞を受賞した。鈴木博之氏が『日本の名建築 167』(日本建築学会賞 受賞建築作品集|1950-2013)に、フロム・ファースト・ビル について書いているのを 最近読んで 懐旧の情にとらえられ、かつて『 建築知識 』1976年 11月号の「私のエスキース作法」特集に、「フロム・ファースト・ビルの場合」として書いた記事を思い出したので、ここに再録することにした。           ( 2016 /02/ 01 )

『 建築知識 』の記事の扉


所在地: 東京都港区南青山 5-3-10 / 総合プロデュース:浜野商品研究所 / 設計: 山下和正建築研究所 / 設計期間:1972年9月〜1974年2月 / 構造: サン構造建築事務所 / 設備: 内山技術士事務所 / 電気: 松本建築設備設計事務所 / 建設主:太平洋興発 / 工事期間:1974年5月〜1975年10月 / 施工:竹中工務店 / 鉄骨鉄筋コンクリート造、地上5階、地下2階、塔屋1階建 / 敷地面積:1,497u / 延床面積:4,905u / 1976年度 日本建築学会賞・作品賞 / 掲載誌:「新建築」 1976年6月号、「建築文化」 同 6月号、「ジャパン・インテリア」 同 6月号、他 / 写真撮影: 門馬金昭、新建築写真部

設計完了時の石膏模型
制作した アトリエ・モンド(鈴木浩)は、ずいぶん苦労したようだ。


私のエスキース作法

―― フロム ・ファースト ・ビルの場合 ――

神谷武夫

はじめに

 梅棹忠夫は『知的生産の技術』の中で、原稿とは「印刷という工事を施工するための設計図」であるとして、原稿の書き方、まとめ方について述べている。彼は文章を書くという作業を、考えをまとめる段階、それを文章に書き表す段階と二つの段階に分け、技術論としての第二段階よりも重要な、考えをまとめる第一段階のために「こざね法」なるものを提案してしている。まず多数の紙きれに、主題に関係のある単語、句、短文を思いつくままに書き並べたのち、それらを論理的に組み合わせて「こざね」を作り、その順序に肉づけをしながら文章を書くのだという。これを建築でいうと、設計者の頭の中に何らかの思想があり、これを具体化するためにその断片をスケッチ化し、そのスケッチ群を論理的に組み立てて設計案を作るということになる。

 けれど建築のデザインは直観的総合能力に依存する度合が大きいので、どんな方法論を持ってきても その通り進行することは少なく、時には たった一枚のスケッチがそれ以前の全てのスケッチを否定して、設計案の骨子となってしまうこともある。そういった一枚のスケッチが どのようにして生み出されるかは「作家の秘密」としか言えないのだろう。建築的知的生産の技術の確立は至難だというべきだが、また そういったインスピレーション的エスキースとは別に、建築をとりまく社会条件の変化がもっと動的なエスキースを必要としているようでもある。

設計開始

 青山通りから根津美術館のほうへいくぶん引き込まれた敷地を見に行ったのは、4年前の夏だった。敷地面積は 1500平方メートル、商業ビルとしては周囲が住宅地であり、向かい側が小学校なので最良の土地とは言いがたいが、角地であり、道路に面する延べ長さが 100メートル近くもあることは、単なるファサード建築ではないものが建つ可能性をもっていた。

最初期のスケッチ(頭に浮かんだことは何でもスケッチしてみる)

 このL字型の敷地に盛りこむ内容は、自由業に近い業種の住居兼用オフィス群と 店舗群との複合体であり、生活・仕事・ショッピング等が渾然一体となった、いわば「ミニ都市」を作ることであた。企画は設計開始以前より浜野商品研究所により進められていたが、ここには今までにない新しいタイプのビルを創造しようとする意気込みが経営・企画・設計を含めたチーム全体にあった。設計過程ではデベロッパーは勿論であるが、企画側からも絶えず様々な注文が寄せられ、今までにないソフト志向のビルであり、おまけに設計進行中に日照問題があり、建設物価の高騰ありで、設計は紆余曲折のうちに 18ヵ月を要することとなった。以下に設計のプロセスを追いながらエスキースの説明を加えてみたい。

3棟分離案(上階オフィスへのアプロ-チを 廊下でなくコアにしてみる)

 建築の発想とは、設計者が何を可能とさせたいか ということであるが、その前に何が不可能であるかというチェックが必要であり、その見極めなしの段階のイメージは設計が進行するにつれてむしろ害となることも少なくない。従がって我々はまず消去法とでもいうべきか、イメージは白紙のまま 法規その他において出来ないことを確認することに全力をあげる。ソフトな部分の調査は企画側においてなされてきたが、ハードな部分の調査およびソフトな面とと合わせてのチェックが必要であった。チェックもれの要素が後に突然顕在化して形態や空間が打撃を受けることは極力避けねばならない。
 与条件としての機能や必要室面積が明確である場合には、そうした部分機能のゾーニングが設計のスタートとなるのが自然だが、このプロジェクトの場合にはビルの内容に対する抽象的イメージは強烈であっても 具体的な必要室がリストアップされているわけではなく、むしろ数次の設計案の提出とともに試行錯誤を重ねつつ、企画自体も煮つまっていくという経過をとった。

上下分離案(足元を店舗で埋め尽くさずに、
一部を外部に開放するイメ- ジが頭にあった)

 初期のスケッチに見られるように、上階はオフィス的住居、中階は住居的オフィス、下階は店舗という層構成を前提として、形の上でこのビルを特性づけるものを探し求めていた。自由な組織の集合という内容は、ビル全体を一つの四角い箱にしてしまうことを拒否すると思われ、全体をいくつかの棟に分離することも追及してみた。巨大建築に抗議する姿勢は初めからあったと言える。

道路面から建物の奥の方へ、
いかに人を導きいれるかも 重要なテ-マだった

 一方では、このような商業ビルにおいては、特に道行く人のための建物の足もとまわりが重要であるという認識から、単に道路沿いにショーウィンドウが並んでいる店舗構成ではない、界隈の活性化をもたらす構成が模索された。そして人々が、店舗も客側も何かを働きかけることができ、オフィス階の人々にとっても利用しうるような、いわば建物の核となるスペースが必要であることに気付いてきた。その核となるスペ―スは、地下街のような低い天井の薄暗い場所であってはならず、立体的な利用が可能な、ビルの顔となるべき場所であろう。

ガレリア案(大きな骨格的表現が忌避された)

 そうしたスペースを求めて作ったいくつかの案の一つが ガレリア案である。道路に面してガラスで覆われた大きな空間は、ビルのエントランス・ホールであり、店舗への客だまりであり、全体が店舗ともなり、道路の延長ともなり、アトラクションの行われる広場でもある。これは魅力的な提案であった。しかし広場であり廊下でもあるスペースを容積率で制限された床面積に中に食いこませることは、ビルとしての採算の上から否定されることとなる。それ以後は法規上の床面積に入らない形で こういった核としてのスペースを作り出すことにスタディを集中させ、結局それは中庭的なものになっていくわけだが、そういったスペースの必要なことが 関係者に了解されたことは 収穫だった。

第一次案

道路との平行配置を崩すと、
ファサ-ドに凹凸の変化が 得られることに気づく

 外部に対する表現としては、ガレリア案のパースが示すような 大きな骨格の表現ではなく、小さなスケールの積み重ねで成立するような造形の可能性を追求していた。その解決のきっかけとなったのが 上のスケッチで、それまでは習慣的に建物を道路と並行配置していたのだが、その平行性を崩すと 昔の工場の屋根のように、平面上で表面がノコギリ型の凹凸を持つことになる。さらに平面の規則性を排除し、上階をセットバックさせることで、自由な小さい単位の積み重なり的表現という所期の目的が達せられると考えた。


道路との平行配置を崩した場合のファサ-ド試案

 そして中庭(パティオ)を囲んで店舗を配置し、上階のオフィスや住居からも この中庭を見下ろせるようにすることで、その後の様々な変遷にも耐えうる このビルの構想が出来上がったのである。


中庭型プランへの到達

 案が固まっていく過程で、この中庭をより特徴的なものにするために浮かんだアイデアが、上階を中庭の上に張り出すことによって 普通の中庭よりも内部的な印象を強くすると同時に、雨天時の買物客にも十分利用されるものとすることだった。

中庭の上に上階を張り出して、通常の中庭と異なった効果を期待した。

 ただし、これには二つの危険性があった。まったく陽の当たらない中庭が 暗く陰気な場所になってしまわないかというのが一つ、官庁の指導によって この囲われた場所が床面積に参入されはすまいか というのがもう一つだった。この内心の怖れにもかかわらず断行したのは、何とかなるだろう、してみせる、といった楽天性であり、また冒険のない設計に満足感をもてないデザイナー意識だったかもしれない。いずれにせよ、その形を実現させることができたのだが、その間の対官庁上の苦労は言うまでもない。


第1次案の断面スケッチ

 こうして5ヵ月を費やして 基本設計が出来上がった。パースに見られるように、バルコニーがセットバックしながら織りなす外観は迫力があり、中庭のスケールも実施案よりも大きく、ある程度会心の作ということができた。しかし残念なことには、この時点から具体的な交渉に入った近隣の日照問題によって この案は御破算となり、「第一次案」の名称を被せられることになったのである。

第1次案のパース(クリック拡大)


条件変更

 当時、新聞には毎日のようにマンション建設による日照紛争が報じられ、近隣の同意なしにはビルが建たなくなってきていた。このビルの建設主であるデベロッパーは良心的に、第一次案をたたき台として近隣と交渉を重ね、その度に我々も多数の日影図を作成し、その枚数は 40枚にも及んだ。その代わりに買収や強行なしに、納得づくで協定書を結ぶこととなった。走路をへだてた小学校の要求として、冬至の3時に校庭の半分以上に影が伸びない高さとすること、同時に エレベータ・シャフトも裏側に移すことが 最も大きな変更内容だった。結果として、高さを一階分減らされてレベル設定を修正してみると、どう頑張っても第一次案の外観は維持できない(図13, 14)。

日影制限によって 高さを削減する

 それと同時に 近隣問題解決に当たった4ヵ月の間に、このビルを取り巻く社会的状況は 大きく変わってしまったのである。まず、オイルショックその他による 建設費の暴騰。高さを削られて地下面積が増大したことは それに拍車をかけることにもなり、それは建物内容の企画の再検討を迫った。さらに経済危機を反映して建設費抑制の告示が出され、ビルの実現が危ぶまれた時期もあった。次に、用途地域の変更。首都整備局による新用途地域の線引きが進行中であり、新しい条件での再設計のスケジュールを組んでみると、その実施が このビルの確認申請前後となる可能性が大きくなったため、用途指定変更の情報を絶えず意識しながら設計を進めていく必要があった。また、住専から住居地域への指定替えによって、懸案だったアスレティック・クラブの設置が可能となり、また駐車場の可能床面積も変化を受けることになる。そういった様々の動因に基づいて、デベロッパー側の担当メンバーも一新したのだった。


条件変更後の、すべての要素の関係 概念図
エレベ-タ・シャフトと駐車場の位置が大幅に変わる。


適応と展開

 条件変更によって、第一次案は破棄せざるを得なくなり、再設計は 階高変更とスパン変更で始まる。構造計画によってSRC(鉄骨鉄筋コンクリート造)の経済スパンとして8メートルが採用され、協定書によって絶対高さを抑えられながらも、地下を活性化するために 前面道路から半階上がり、半階下がりに店舗を確保する。これによってオフィス階の階高を最小限に抑えねばならなくなり、あとあと実施設計および工事監理段階で 極めて苦しい思いをするはめになってしまった。


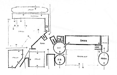
中央プラザまわりの空間模式図



条件変更後の最初の案。 45度の動きの多用。
道路面より半階上がり(上)と半階下がり(下)の店舗構成は、
半外部空間の構成に 豊かな変化を与えることになった。

 平面は 基本的に第一次案を踏襲しながら、中庭(プラザ)が狭くなったことの補いとして 45度を多用して 変化をもたせようとした。しかし これは 案が進むにつれて使用上の理由から直角に戻されていく。上階は数次の企画変更によって、2階を小事務所群、3~5階をメゾネット・オフィス群とすることになり、住宅の要素が遠ざけられた。建物全体の高さが抑えられることによって、逆に広くとることになった地下には ア スレティック・クラブを容れることになり、さらに 車の入口位置の変更や 駐車台数を増大させるために、機械式駐車場を導入した。この時点で、内部の空間構成の骨子は決定したのである。



多くの外観スタディのひとつ
内部の構成が決まったあとも、外観の決定打が なかなか見つからなかった。

 最後まで悪戦苦闘したのは 外観である。一次案の時には内外とも一気に解決する案が導き出されたのだが、外部の状況変化による修正を理づめで追っている限り、外観の決定打は出てこないし、また 同じ平面に対しても 外観は様々に形づくることができる。ここで模型のスタディが始まり、考え得るかぎりの外観を簡単な模型に作り、比較検討しては壊していった。

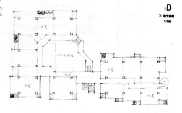
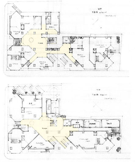
ほぼ最終案に近い段階の平面図。
企画側との協議で、小さな変更は まだ無数に出てくる。

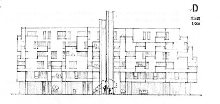
 一次案よりも少ない層数で なお変化に富んだ、小さな単位の積み重なりによる表現を探していったことが トップライトを導くことになったとも言える。メゾネット・オフィスの間口は6〜12メートルなので、初めはそれを外部に表現するために、水平線を強調した案もあったが、第一次案の人間的スケールにするために すべてを3メートルの単位に分割してキャンティレバーの凹凸とし、最終形態を与えることとなった。

   エスキス模型 水平線と連続性の強調が否定される。
  
  最終案の 1/100スタディ模型       プラザの 1/20スタディ模型
この建物は図面だけでは決して理解されないので、
都庁の法規担当官にも 事務所に この模型を見に来てもらった。

 こう書くと話は簡単だが、最終決定したのは最小限に切りつめられた図面作成時間を残すのみの時期だったのである。こうして第二次案の基本設計が完了し、これより4ヵ月間が実施設計となる。この間、構造や設備、使用側からの要望による修正と同時に、1/100模型を作成して細部の形の修正、さらに 最も気になるプラザまわりの1/20模型を作って検討する作業も進められた。

完成

 実施設計が完了すれば、あとは工事だけということになるが、工事着工後に展示用に作られた精巧な模型もまた検討材料となり、要するに建物が竣工するまで変更に次ぐ変更で、意匠・構造関係の変更指示事項だけで231項目を数えることとなった。75年末に竣工、設計期間18ヵ月、工事期間16ヵ月であった。


断面透視図

 こうして設計監理過程を振り返ってみると、今や昔の良き時代のように、初めにイメージありき、とウッツォンのようなスケッチによって建物が作られる時代ではもはやなくなったようである。都会生活は複雑化の一途をたどり、建築の機能・設備は錯綜・複合化し、日照問題その他 過密化による軋轢が生じ、採算チェックも法規制も厳しくなる一方で、関係者の数が増すほどに 建物も一筋縄では作れなくなる。形や空間上のエスキースもさることながら、法規上のエスキースはもっとシビアで、このビルも法規を不利な方向に解釈していけば決して実現しなかった筈の建物である。3〜5階のメゾネット・オフィスにしろ、床面積に参入しないプラザや廊下、連続式店舗の適用の除外、その多様々の法規制の限界と渡り合ったこのビルは、よく実現したものだと 今も思う。

 建築を取り巻くこうした世相の変化があるからといって、状況に押し流されるだけの没個性的建物が求められている と言っているわけではない。建築設計者には イメージやアイデアの豊かさと同時に、それを実現させるための忍耐力と主体性が より強く求められているということなのである。

(『 建築知識 』 1976年11月号 )


← 平面図・断面図     ← メゾネット・オフィス


 
竣工まぎわの フロム・ファースト・ビル 現場にて



鈴木博之氏評論

「時代と建築とわたくしと」より 抜粋


『日本の名建築 167』(日本建築学会賞受賞建築作品集|1950-2013)
( 日本建築学会編、技報堂出版刊、2014)所収

(1970年代になると・・・) そうした時代の中に 山下和正の設計によって生まれたフロム・ファースト・ビル(第28回|1976(昭和51)年度学会賞受賞)は、南青山という 上り坂のファッショナブル・エリアに出現した、ショッピング施設の複合ビルである。機能的な動線計画ではなく、複雑で自由な回遊性のあるビル構成は、機能主義による初期近代建築が 確実に終焉したことを示すものであった。

 フロム・ファースト・ビルに見られた、新しい時代の兆候は二面的なものである。ひとつが、いま述べたように、機能主義的計画による建築の終焉であり、他のひとつが、建築の主題としての、商業建築の登場である。初期の近代建築には、あきらかに 理想の社会に対する憧憬の念、あるいは理想の社会追及の意志があった。そこでは 建築のジャンルについての倫理的序列意識が存在していた。社会政策の主題となり得る建築ジャンル、具体的には 住宅、教育施設、福祉施設、文化施設などが 建築の主題となり得るジャンルであり、民間企業のオフィスや商業施設などは 建築理論の対象とはされてこなかった。建築計画学は 住宅、教育施設、福祉施設、文化施設を主題としていたのである。それは ヒューマニズムに基づく建築の方法論と見えたが、極めて体制的な政策学としての建築理論でもあった。社会に手厚く政策を繰り広げる大きな政府の時代にあっては、建築計画学は力をもったが、やがて規制緩和、小さな政府という時代になってくると、建築計画学は活躍の場を失ってゆく。

 フロム・ファースト・ビルが、複合商業建築として登場し、機能主義的動線計画によらない 建築構成を採用したことは、近代建築の ひとつのエポックであった。この後、多くの複合商業施設が さまざまな建築家によって試みられ、複雑な構成、迷路性が魅力となってゆく。福岡のキャナル・シティ博多から 六本木ヒルズに至る複合開発の原型が ここにあったといえるであろう。これらの開発にあっては、迷路性、回遊性が当然の主題となっている。倫理的な理想から離れて、商業主義を前面に据えた建築の登場が、フロム・ファースト・ビルによって印象づけられたのである。

 フロム・ファースト・ビルは、都市的なスケールにおいても 特徴のある存在となった。これまでの商業施設の立地は、鉄道のターミナル周辺、商店街的な街路沿い などを中心としていた。しかしながらフロム・ファースト・ビルは ビルの存在によって、通りやエリアが商業化してゆくという流れの 起爆剤となったのだった。南青山といえば 東京屈指のファッショナブル・エリアであり、洗練された商業集積が見られることで知られるが、そうした都市のあり方を生み出してゆく流れの源流こそ、このビルだと いえるからである。 (p.11)

『日本の名建築 167』
(鈴木博之氏は、この稿を書いてまもなくの 2014年2月に逝去された)



 このページを書いたあとで、このビルについての ネットの記事を見ていたら、「南青山SOビル」 という名が出ているのを見て、大いに驚きました。 関係者でなく その名を知っている人は いない筈だからです。 上に書いたように、このビルの そもそもの企画は浜野商品研究所によって行われ、青山を拠点とする自由業の人たちの 生活と仕事の場所を作ろうということでした。 そこで、大企業のハードな本社ビルとは違う という意味で、企画されたビルの名を 「ソフトタッチ・オフィスビル」 としたのです。 その頭文字をとって、我々も設計中は 「南青山SOビル」と呼び、確認申請時の工事名も その名でした。 工事の終了近くに、浜野安宏氏が正式名称として 「フロム・ファースト・ビル」 の名を太平洋興発に提案して 決まったのです。 下の写真は、ビルの竣工時に私が作成して 建主に提出した 設計監理報告書の表紙です。 太平洋興発は 工事中からテナント募集の営業をしていましたから、不動産業界には SOビルの名が残ったのかもしれません。

SOビル


BACK

ガネシャ
© TAKEO KAMIYA 禁無断転載
メールはこちらへ kamiya@t.email.ne.jp