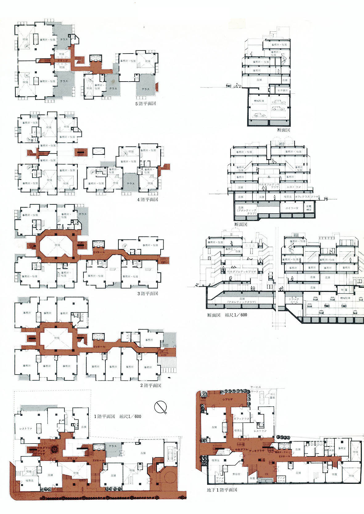
フロム・ファースト・ビルの平面図と断面図
(『新建築』1976年 11月号
より
)