所在地: 神奈川県横浜市中区野毛町 / 設計: 神谷武夫建築研究所 / 設計期間:1994年2月〜11月 / 構造: 石和構造設計事務所 / 設備: 三共設備設計事務所 / 電気: 山崎設備設計事務所 / 工事期間:1995年1月〜12月 / 施工: 西松建設 / 鉄骨鉄筋コンクリート造、地上4階、地下1階建 / 敷地面積:266u / 延床面積:871u / 横浜優良小売店舗・神奈川県知事表彰 / 掲載誌:「建築設計資料」 84. 店舗併用住宅=商住建築2 / 写真撮影: 斎部功
立面図
【 設計要旨 】
● 環境
東京では、上野駅から浅草へ行く道路沿いに仏具店が多く点在し、仏具・仏壇店街を形成している。 横浜におけるその小規模版が、桜木町駅近くの野毛坂通りである。 現在は道路幅が15mと広くなり、急な坂道を車が疾走しているので、静かに仏壇を選ぶにふさわしい環境とは言えなくなってしまったが、現在もなお、仏壇を買うなら野毛坂で、というのが横浜における伝統である。
昔の木造の商家の町並みが、時代と共に高層ビルに建て替えられ、野毛坂の仏壇店もほとんどがRCのビルとなる中、最も古くから営業している関神仏具店は、その最後まで残る木造店舗だった。 ところが、すぐ隣りに中央競馬会による場外馬券売場の巨大なビルが建てられ、その工事の影響で地盤が不動沈下してしまったので、老舗の木造店舗もついに建て替えを決意した。

野毛坂通りに面する外観と、店舗内部
ビルの基本的な内容として求められたのは、2層の店舗と、経営者の親子2世帯の住居であるが、デパートにも卸をしているので、商品の在庫のための広い倉庫も作りたいということだった。
敷地はL型をしているので、真四角なビルにはならない。おまけに斜面の土地なので、前面道路に接する部分は両端で 1m以上の高低差があり、奥に向かっては 2m近くも下がっていく。 少々扱いにくい敷地であったが、道路に面して幅が広いのは店舗にとって有利である。 さいわい、側面にも短い距離ながら細い道路があるので、商品の搬出入のための駐車スペースをこちらに設けた。 そのために前面道路から見ると、奥行きのごく浅い建物に見えることとなったが、実際には約20mの奥行きがある。 建物の側面壁には、設計者によるステンレス・パイプの彫刻をとりつけた。
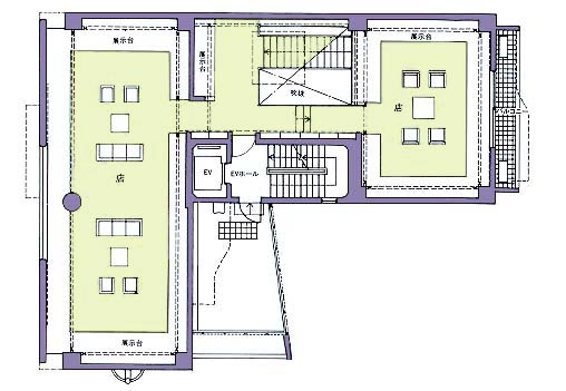
2階店舗平面図
● 全体構成
オーナー側で考えていたビル構成は、1,2階が店舗で、3階が倉庫、4,5階が住居というものだった。 仏壇店の実例を見てまわると、しばしば 2階が階段室やエレベータで1階と切り離されていて、店としての有効性が十分でない場合が見受けられた。 そこで今回は 1階の奥に中 2階を設けて、半階ずつの楽な階段で上るようにした。 客は商品を見てまわっている内に、自然に 2階へと導かれるので、2階に連れ込まれるという抵抗感をなくせるのと、階段の吹抜けを通して 1階、中 2階、2階を視覚的にも連続させるためである。
階段の真上は上階の住居の中庭になるので、その床にガラスブロックを嵌めて、1階の売場奥まで自然採光をした。 中 2階の奥は事務室や店員の休憩室としているので、店員は仏壇のうしろの格子スクリーンから 1,2階とも見渡すことができ、どちらへも素早く行くことができる。
こうすると、敷地のうしろが低くなっているので、中 2階は裏からは 2階となる。 そこで倉庫をすべて地階にすると、大物商品は道路側の倉庫にエレベータによって下ろし、小物は裏側の半階下がりのところ (実際上の 1階) となり、採光、換気もとりやすく、店とのつながりもよいものとなった。

2階の仏壇売り場 3階住居の和室
● 店舗
仏壇や神棚とその関連商品を商うので、インテリア・デザインとしては和風感覚がほしいところである。 しかしそれを、生な形で表現するのではなく、現代生活にふさわしい新しいデザインにしたいと考えた。 そこでRCの柱や壁の内側に 100×100の H型鋼のフレームを挿入して、商品を並べる枠組みとし、これが 1階から 2階へと連続していくことによって、日本的な繊細なスケールのインテリアとなった。 H鋼は基本的には壁と同じ淡いグレーにしているが、凹部の底に木の板を貼って、ここにのみ鮮やかな彩色をしてアクセントとした。
1階の床は御影石であり、2階の仏壇を置く台もまた、木ではなくトラバーチンとして、鉄と石による新しい感覚の神仏具店としている。 1階の道路側は、客が店に入りやすいよう、ガラス戸を設けずに独立商品棚を置いて、その間をエア・カーテンで内外の仕切りとし、通行を自由にした。 1階には大衆的仏壇、2階には大型仏壇、2階奥には高級仏壇を配置している。
南北断面図
● 住居
店舗と住居が重なった場合、住居の生活臭が店に持ち込まれると、客に悪い印象を与えるので、住居の出入りはすべて側面道路からとする。 そして前面道路は北側なので、こちらの開口部は、非常用侵入口を兼ねた居間のテラスのみとし、裏の南側に大きな開口をとった。 それによって道路側ファサードの上階は壁面が多く、住宅が載っているという印象を少なくすることができた。 それはまた、道路騒音をできるだけ遮断するためでもある。
住居階には、4世代からなる 2世帯が住む。 3階には当主の家族とその母堂、4階には子息の夫妻とその幼児たちで、全員が下の店を代々経営している。 母堂の領域にある程度の独立性をもたせることと、全体の通風・採光のために、小さいながら中庭を設けた。 これによって玄関、食堂とも明るく、眺めのよいものとなり、中庭での屋外的な活動も期待している。

パティオに面した3階の食堂
(「建築設計資料」84. 店舗併用住宅=商住建築2、2001年 12月、建築資料研究社)
BACK NEXT
© TAKEO KAMIYA 禁無断転載
設計のお問い合わせは こちらへ
kamiya@t.email.ne.jp
|