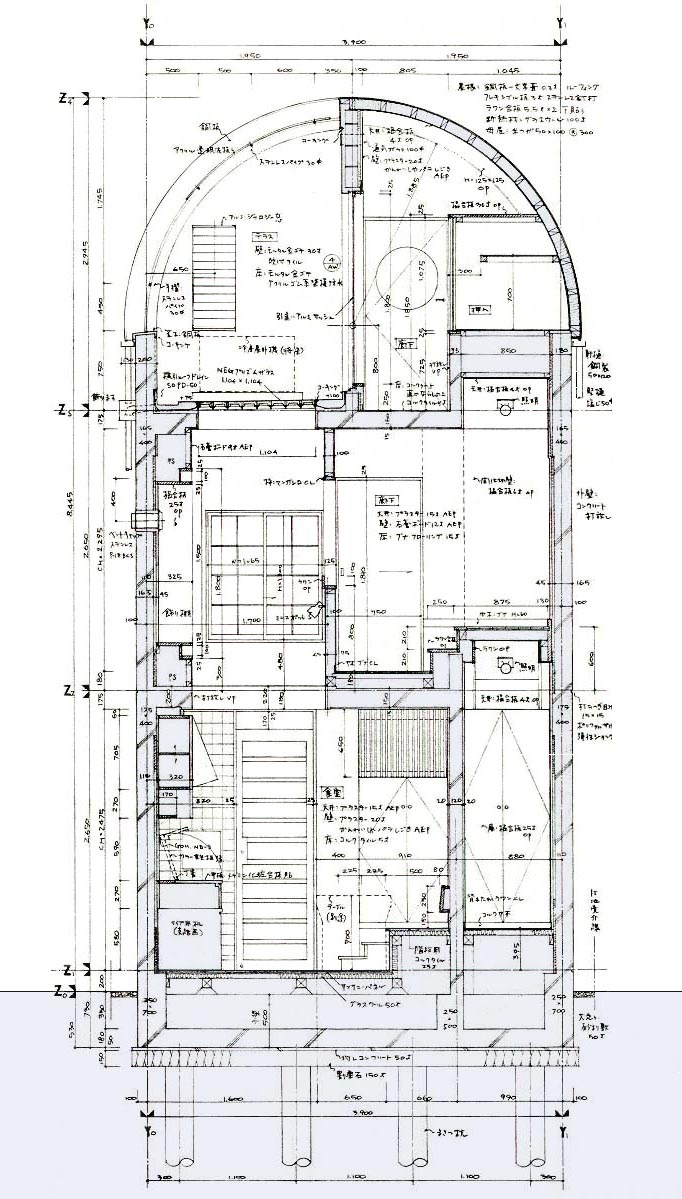
矩計詳細図