所在地:神奈川県平塚市夕陽ヶ丘 / 設計・監理:神谷武夫建築研究所 / 設計期間:2000年3月〜9月 / 構造:須賀設計事務所 / 設備:三共設備設計事務所 / 電気:山崎設備設計事務所 / 工事期間:2000年10月〜2001年6月 / 施工:馬渕建設 / 鉄筋コンクリート造2階建 / 敷地面積:220u / 延床面積:174u / 写真撮影: 斎部功 / 受賞:第47回 神奈川建築コンクール 住宅部門 奨励賞
ベンチと花壇とアルミ・スクリーンで囲まれたパティオ
【 設計要旨 】
平塚の海岸近くに、老朽化した木造住宅を鉄筋コンクリート造の住宅に建て直すこととなった。平塚市は道路も広く整備されていて、快適な住宅地を提供している。東京に比べれば敷地もずっと広やかである。
しかし、ここには住宅が2軒建っていて、道路側の住宅はそれほど古くないので残し、奥の家のみ建て替えることとした。すると、2軒の家の駐車場を兼ねたアプローチ通路からしか外観を見ることのできない家となる。したがって設計の主眼点は外観よりも内部空間と、敷地先端部の南側につくる庭との関係に置かれた。それは中庭(パティオ)を中心としたイスラム建築的な、内向きの建築と言える。

取り壊した古い家は道路と平行配置であったので、そのテラス戸の先には隣家の壁面が目の前にそそり立っていた。また敷地の形が不整形なので、南側に部屋を突き出し、おまけにそこを 2階建てにしていたので、全体に陽あたりが悪く、眺望もよくない家であった。
そこで新しい家は軸をずらして、敷地の一番奥行きの深いところに中心軸を向けることにすると、それがほぼ真南に面するので、陽あたりも眺望も一番よいことになる。その場合の問題は、建物が道路側の既存家屋と平行にならないことで、敷地境界線とのなじみも悪く、平面計画がたてにくい。
一方、アプローチ部分には車を前後に2台置けるようにしたいという要望があり、それを満たすには玄関位置を奥へ引っ込めねばならない。それはますます建物の配置をむずかしくさせた。
さらに考慮すべきことは道路側の既存住宅との関係で、あまり近くに寄せれば既存住宅の採光、通風が悪くなるし、あまり離せば新築住居の庭が狭くなる。
これらの問題を一挙に解決する案として浮上したのが、円形プランであった。これなら軸線は自由に変えて、敷地の先端に向けることができるし、今回の不整形な敷地形状ともなじみが良い。
また、必然的に玄関は奥へバックして駐車2台を可能にさせるし、反対側は三角形状のサービスヤードとなる。 これによって既存住宅へは朝陽と夕陽があたり、平行配置よりも圧迫感が少なくてすむ。新築住宅の居室は 1、2階ともすべて南面して陽あたりがよく、庭の眺望がえられることになった。

玄関アプローチ夕景 南側から見た全景 泉水のあるパティオ
建物本体は円筒を南側で切断した形となるが、この切断部を延長して敷地の形にあわせ、アルミのスクリーンを半円形にまわすことにした。 このスクリーンの外側を、庭の背景となる背の高い緑とし、内側を 「囲われた庭(パティオ)」 として、イスラミックな幾何学庭園とした。
円弧の中心を「泉」として白大理石の水盤を置き、その周囲に御影石のベンチをまわし、ベンチとアルミ・スクリーンの間が植え込み花壇となる。 気候のよい時には、ここでお茶を飲んだり、バーベキュー・パーティーをしたりすることができる。
居間からは、このパティオの眺めを最大限楽しむべく、正面に大ガラスを嵌め、その左右を開きガラス戸として庭との一体化をはかった。
居間と食堂とはひと続きである。面積の節約のために、一番奥を食堂の造りつけのベンチとして(庭のベンチと対応している)、特注の大テーブルを置いた。予備の椅子を二つ、テーブルの短辺がわに出すと、総勢 11人の会食ができる。
ペンチの真上は吹き抜けていて、2階の諸室と声をかわせる。 上からそっと、下の客を観察することもできる。吹き抜けの真上はトップライトとなって青空が見えるので、薄暗くなりがちな2階中廊下がたいへん明るく、さらに1階の食卓に光を投げかける。
居間と食堂には床暖房を設置しているが、それでも真冬は吹き抜けから暖気が逃げていくので、その時は吹き抜けの障子を倒して空気を遮断しながら、障子を通した柔らかい天井光を得ることができる。このベンチに座るのが、家中で一番居心地のよい場所となった。
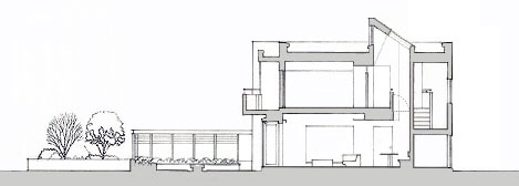
断面図
この家で外観として人が目にする唯一の場所が、玄関へのアプローチである。青紫色のタイルに、淡い色のストライプをつけた曲面壁が直線状の塀に連続し、両者にはさまれた所にライラックの樹を植えた。この樹がこの家のシンボルであるが、しかしライラックは華奢な樹で、大きな樹にはならない。
そこで建築上のアクセントを、建物全体と親子のような円筒形を張り出させ、玄関の庇を釣る構造を兼ねさせて造形した。この半円形の突出部は乳白のポリカーボネートで囲われ、ステンレスのフレームとともに印象的な姿をしているが、実はこれは物干し場の目隠しスクリーンなのである。
この内側の物干し場は透明なポリカーボネートの屋根をもち、円筒下部のパンチング・メタルから屋根の浮かし部分へと外気が抜けるようになっている。夕方になると、円筒の内部に釣られた電球が自動的に灯り、帰宅する家人を暖かい光で迎え、また留守の時にも在宅の印象を与える防犯効果をねらっている。
|